Back
Add to selection

Apartment
Villefranche-sur-Mer Marinières

  • Ref. 1895NANN
  • 1 bedroom
  • 1 bathroom
  • 55 m²
  • 590,000 €

French Riviera - Villefranche-sur-Mer - Les Marinières - Apartment with Panoramic Sea View

French Riviera **Villefranche-sur-Mer - Marinières**

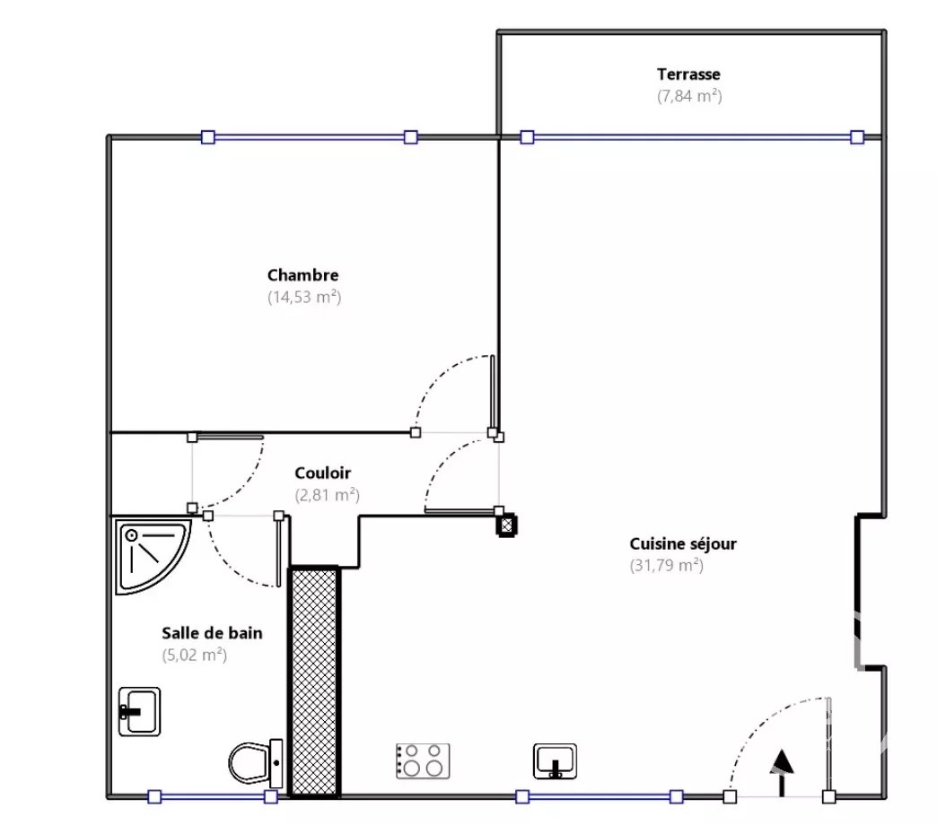
Discover this stunning 2-room apartment located on the 2nd floor of a well-maintained residence, offering panoramic sea views on Saint-jean-cap-Ferrat to the Old Town. This cross-ventilated apartment features a living room with an open kitchen, a terrace, a bedroom, a bathroom with a shower and toilet, closets, and a hallway.
A 6m² cellar with elevator access completes this property.

In perfect condition, the apartment, renovated in 2014, is ideal for seasonal rentals.

**Features:**
- Size: [provide size if available]
- Monthly charges: €85
- Property tax: €1,042
- Number of units in the condominium: 46
- Seller’s fees included

**Advantages:**
- Only a 5-minute walk to the SNCF train station, the beach, and the old town of Villefranche-sur-Mer.
- Close to amenities and public transport, ideal for enjoying the region.

Don't miss this unique opportunity to acquire a high-quality property in a prime location.

For more information or to schedule a visit, contact us today.

#VillefrancheSurMer #SeaViewApartment #CloseToBeach #InvestmentProperty #

Print this ad

Summary

  • Rooms 2 rooms
  • Surface 55 m²
  • Heating Convector, Electric, Individual
  • Hot water Hot water tank
  • Used water Main drainage
  • Condition Excellent condition
  • Floor 2nd / 5 floors
  • Orientation South-east
  • View Sea
  • Renovation year 2011
  • Availability Free

Services

  • Air-conditioning
  • Double glazing
  • Internet
  • Simple flow ventilation
  • Outdoor lighting
  • Lift
  • Optical fiber
  • Digicode
  • Intercom
  • Window shade
  • Electric shutters

Rooms

  • 1 Bedroom 14.6 m²
  • 1 Kitchen 2.65 m²
  • 1 Living-room 28.62 m²
  • 1 Shower room / Lavatory 5 m²
  • 1 Terrace 8 m²
  • 1 Cellar
  • 1 Hallway 2 m²

Proximities

  • TGV station 100 metre
  • Sea 20 metre

Energy efficiency

Energy - Conventional consumption Energy - Emissions estimate

By clicking on "I agree", you authorize the use of cookies to ensure you get the best experience on this website.

Learn more I agree