Retour
Ajouter à la sélection

Villa
Cagnes-sur-Mer Les Bréguières

  • Ref. 86467224
  • 3 chambres
  • 3 salles de bains
  • 177 m²
  • 1 148 000 €

Villa individuelle neuve R (ROUGE)

Au sein d'un parc végétalisé de 1258m² à proximité de toutes les commodités, nous vous proposons dans ce joli ensemble RVB de trois Villas individuelles contemporaines en cours de construction.
La villa ROUGE.
Située à Cagnes sur Mer entre Nice et Antibes, ville alliant authenticité méditerranéenne, dynamisme économique et douceur de vivre cette villa à seulement 10 mn de l'aéroport, quelques pas des plages se compose de 3 chambres, 2 salles d'eau, cuisine ouverte sur salle à manger, grand séjour, sauna, lounge, salle fitness, buanderie, cellier, local technique,, terrasse avec pergolas, jardin et de 2 places de parking.
N'hésitez pas à nous contacter ou mieux venir nous rencontrer pour prendre connaissance de ce magnifique projet contemporain mêlant architecture méditerranéenne, sobriété scandinave et pureté japonaise.
Livraison début 2027

Imprimer cette annonce

Résumé

  • Pièces 5 pièces
  • Surface 177 m²
  • Chauffage Central, Pompe à chaleur, Individuel
  • Eau chaude Pompe à chaleur
  • Eau usées Tout à l'égout
  • Etat Neuf
  • Exposition Sud-est
  • Vue Jardin
  • Disponibilité
  • Disponible le 31/03/27

Prestations

  • Air conditionné
  • Double vitrage
  • Internet
  • Volets roulants électriques
  • Abri de voiture
  • Clôture
  • Éclairage extérieur
  • Fibre optique
  • Portail électrique
  • Porte blindée
  • Jardin en copropriété
  • Interphone

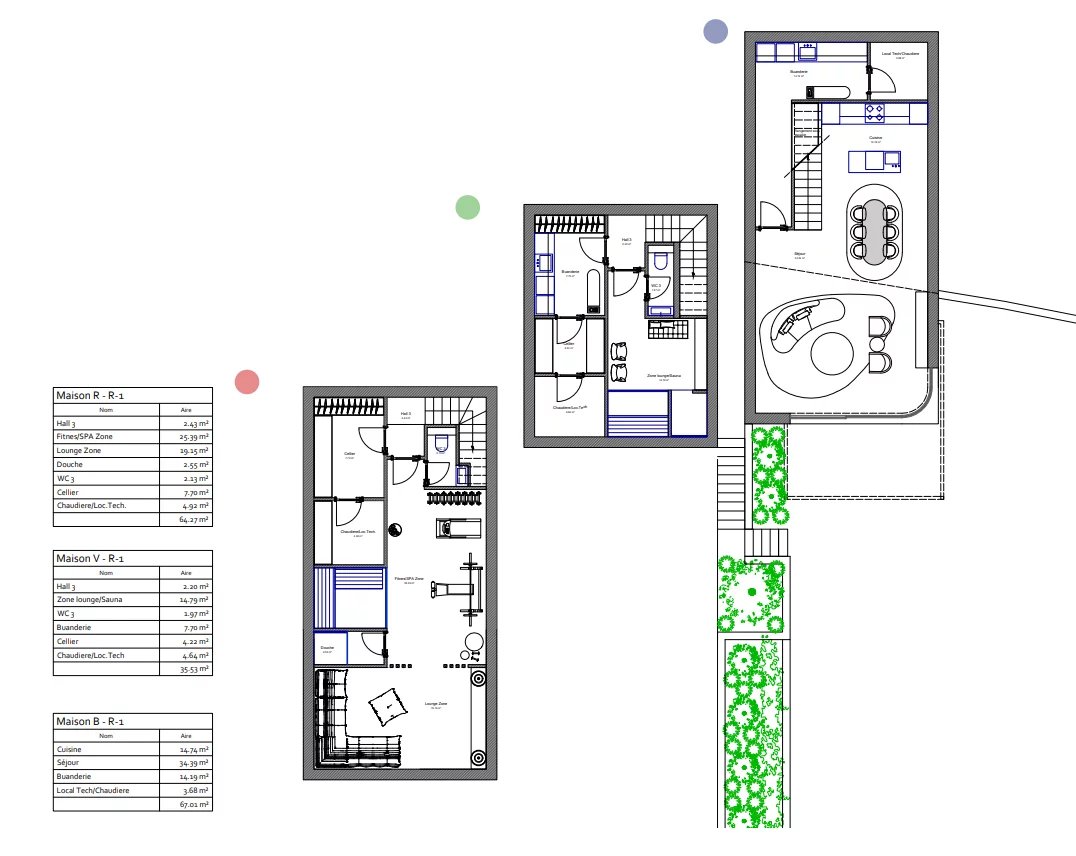
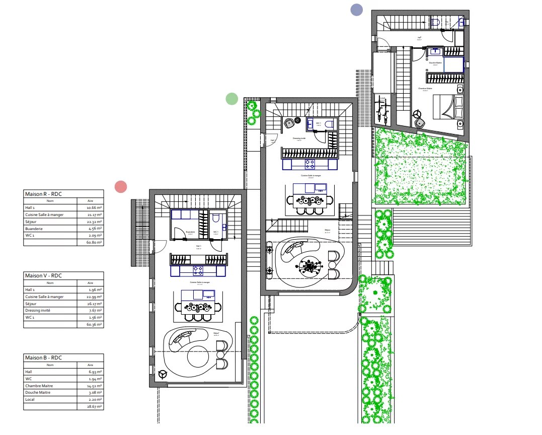
Pièces

Rez-de-chaussée

  • 1 Local technique 4.92 m²
  • 1 Hall 10.66 m²
  • 1 Séjour/cuisine 21.17 m²
  • 1 Séjour 22.32 m²
  • 1 Buanderie 4.56 m²
  • 1 Toilettes 2.09 m²

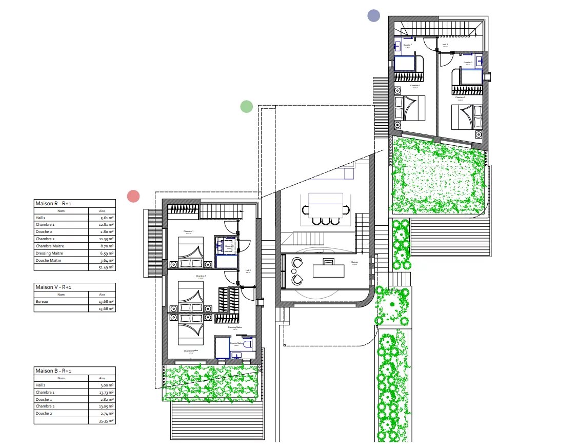
1er

  • 1 Hall 5.61 m²
  • 2 Chambres 11.35 m², 12.81 m²
  • 2 Salles de douche 2.8 m², 3.64 m²
  • 1 Chambre de maître 8.7 m²
  • 1 Dressing 6.59 m²

-1

  • 1 Hall 2.43 m²
  • 1 Sauna 25.39 m²
  • 1 Salon 19.15 m²
  • 1 Salle de douche 2.55 m²
  • 1 Toilettes 2.13 m²
  • 1 Cellier 7.7 m²

Proximités

  • Aéroport 5 kilomètre
  • Bus 200 mètre
  • Gare 3 kilomètre
  • Gare TGV 3 kilomètre
  • Mer 600 mètre
  • Plage 600 mètre
  • Centre ville 400 mètre
  • Commerces 400 mètre

Efficacité énergétique

Énergie - Consommation conventionnelle Énergie - Estimation des émissions

En cliquant sur "J'accepte", vous autorisez l'utilisation de cookies afin de vous assurer une experience optimale sur ce site.

En savoir plus J'accepte