Back
Add to selection

Piso
Niza Libération

  • Ref. FR5232345
  • 2 dormitorios
  • 1 Cuarto de baño
  • 98 m²
  • 540 000 €

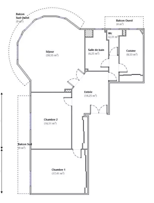
Apartamento - 3 piezas - 98.0 m2 -

Libération: Avenida Clément Roassal.

En la penúltima planta de un hermoso edificio con ascensor, amplio piso de 3 habitaciones de 100 m² con 2 terrazas y un gran balcón alrededor del salón.

Apartamento compuesto por un salón de 30 m² con 6 ventanas, dos bonitas habitaciones de 17 m², una cocina independiente totalmente equipada de 8 m², un baño con ducha y bañera, así como un aseo independiente.

Todas las habitaciones tienen salida al exterior, el apartamento está en la esquina del edificio y dispone de triple orientación Este/Sur/Oeste.

Reformado a nuevo, muy soleado con vistas despejadas, totalmente climatizado y con trastero en el edificio.

¡Raro en la zona!

(Descripción revisada y traducida por la IA)

Imprimir el annuncio

Sumario

  • Salas 3 salas
  • Area 98 m²
  • Heating Radiador, Gasoil
  • Hot water Caldera
  • Condition Nuevo
  • Floor
  • Orientation Sudoeste
  • Vista Ciudad

Prestaciones

  • Aire acondicionado

Salas

  • 2 Dormitorios
  • 1 Aseo
  • 1 Cuarto de baño
  • 1 Bodega
  • 1 Terraza 13 m²
  • 1 Balcón 9 m²
  • 1 Cocina equipada

By clicking on "I agree", you authorize the use of cookies to ensure you get the best experience on this website.

Más información I agree